Mettolan haettavat tontit
Mäskälän kaupunginosassa Mettolan asuinalueella on haettavana vielä 14 erillispientalotonttia. Tontit tulevat jatkuvaan hakuun kevään 2026 aikana.
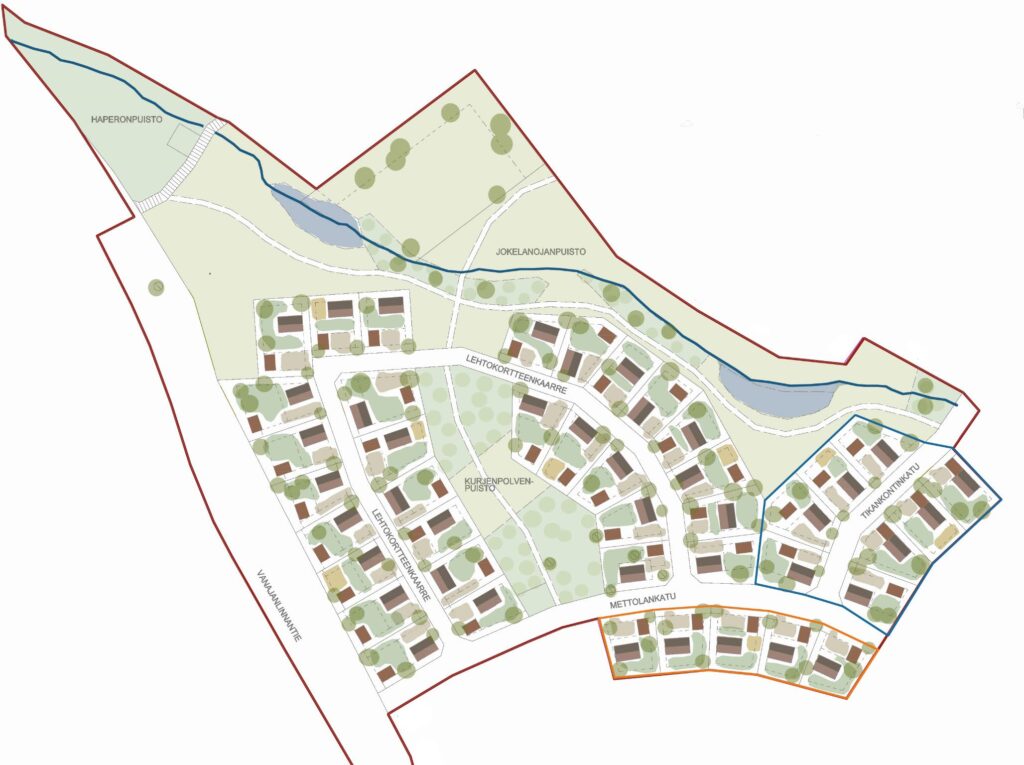
Vielä vapaana olevat tontit on merkitty karttaan punaisella

Mettola sijaitsee rauhallisessa ympäristössä noin 5 km päässä Hämeenlinna kantakaupungin keskustasta, hyvien kulkuyhteyksien päässä palveluista.
Tonttien aluehinta on 36 €/m². Tontin voi ostaa tai vuokrata, ja vuosivuokra on 4 % tontin myyntihinnasta.

Lehtokortteenkaarre
Rakennusoikeus asuinrakennukselle 200m2 sekä talousrakennukselle 50m2.
| Osoite | Kiinteistötunnus | Tontin pinta-ala m2 | Myyntihinta € | Vuokrahinta € / vuosi |
|---|---|---|---|---|
| Lehtokortteenkaarre 1 | 109-36-91-8 | 1108 | 39888 | 1596 |
| Lehtokortteenkaarre 2 | 109-36-92-6 | 1018 | 36648 | 1466 |
| Lehtokortteenkaarre 3 | 109-36-91-7 | 1152 | 41472 | 1659 |
| Lehtokortteenkaarre 4 | 109-36-92-5 | 1040 | 37440 | 1498 |
| Lehtokortteenkaarre 5 | 109-36-91-6 | 1115 | 40140 | 1606 |
| Lehtokortteenkaarre 6 | 109-36-92-4 | 1040 | 37440 | 1498 |
| Lehtokortteenkaarre 7 | 109-36-91-5 | 1075 | 38700 | 1548 |
| Lehtokortteenkaarre 8 | 109-36-92-3 | 1040 | 37440 | 1498 |
| Lehtokortteenkaarre 9 | 109-36-91-4 | 1069 | 38484 | 1539 |
| Lehtokortteenkaarre 10 | 109-36-92-2 | 1195 | 43020 | 1721 |
| Lehtokortteenkaarre 11 | 109-36-91-3 | 1253 | 45108 | 1804 |
| Lehtokortteenkaarre 12 | 109-36-92-1 | 1459 | 52524 | 2101 |
| Lehtokortteenkaarre 13 | 109-36-91-2 | 1412 | 50832 | 2033 |
| Lehtokortteenkaarre 15 | 109-36-91-1 | 1515 | 54540 | 2182 |
| Lehtokortteenkaarre 16 | 109-36-93-1 | 1152 | 41472 | 1659 |
| Lehtokortteenkaarre 17 | 109-36-95-1 | 1015 | 36540 | 1462 |
| Lehtokortteenkaarre 18 | 109-36-93-2 | 1155 | 41580 | 1663 |
| Lehtokortteenkaarre 19 | 109-36-95-2 | 1015 | 36540 | 1462 |
| Lehtokortteenkaarre 20 | 109-36-93-3 | 1064 | 38304 | 1532 |
| Lehtokortteenkaarre 22 | 109-36-93-4 | 1037 | 37332 | 1493 |
| Lehtokortteenkaarre 24 | 109-36-93-5 | 1012 | 36432 | 1457 |
| Lehtokortteenkaarre 25 | 109-36-94-2 | 1055 | 37980 | 1519 |
| Lehtokortteenkaarre 27 | 109-36-94-3 | 1024 | 36864 | 1475 |
| Lehtokortteenkaarre 29 | 109-36-94-4 | 1079 | 38844 | 1554 |
| Lehtokortteenkaarre 31 | 109-36-94-5 | 1073 | 38628 | 1545 |
| Lehtokortteenkaarre 33 | 109-36-94-6 | 1053 | 37908 | 1516 |
| Lehtokortteenkaarre 37 | 109-36-94-8 | 1019 | 36684 | 1467 |
Tikankontinkatu
Rakennusoikeus asuinrakennukselle 200m2 sekä talousrakennukselle 50m2.
| Osoite | Kiinteistötunnus | Tontin pinta-ala m2 | Myyntihinta € | Vuokrahinta € / vuosi |
|---|---|---|---|---|
| Tikankontinkatu 1 | 109-36-94-9 | 1057 | 38052 | 1522 |
| Tikankontinkatu 2 | 109-36-96-1 | 1049 | 37764 | 1511 |
| Tikankontinkatu 3 | 109-36-94-10 | 1209 | 43524 | 1741 |
| Tikankontinkatu 4 | 109-36-96-2 | 1000 | 36000 | 1440 |
| Tikankontinkatu 5 | 109-36-94-11 | 1015 | 36540 | 1462 |
| Tikankontinkatu 6 | 109-36-96-3 | 1057 | 38052 | 1522 |
| Tikankontinkatu 7 | 109-36-94-12 | 1150 | 41400 | 1656 |
| Tikankontinkatu 8 | 109-36-96-4 | 1066 | 38376 | 1535 |
Lue lisää tonttien hakemisesta ja arvonnasta täältä